Proyecto Constructivo — Construcción II (3º curso)
Proyecto constructivo desarrollado en Construcción II (3º curso), en el que trabajé junto a Amalia Teresa López. El ejercicio consistía en tomar un edificio real —el Hemiciclo Solar, un bloque residencial bioclimático en Móstoles diseñado por Ruiz-Larrea & Asociados— y elaborar nuestro propio proyecto constructivo a partir del análisis del edificio existente.
plano de cimentación

plano distribución de garaje

plano de estructura – forjados 1

plano de estructura – forjados 2

plano de estructura – forjados 3

plano esquema constructivo

plano de cerramiento cubiertas

detalles constructivos – fachada norte

detalles constructivos – fachada sur

detalles constructivos

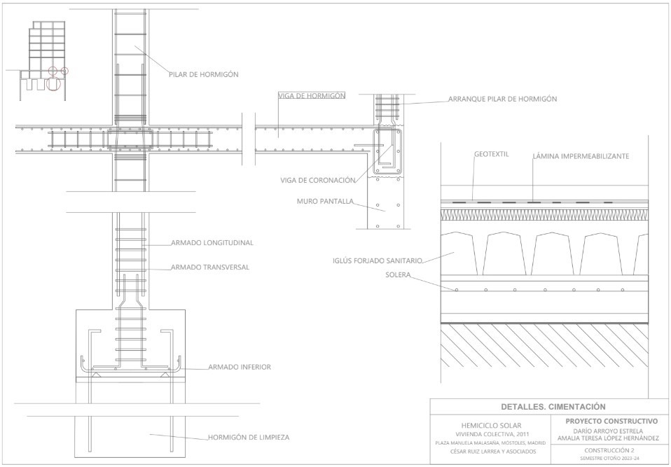
detalles constructivos – cimentación

memoria fotográfica







Deja una respuesta