Plaza Mayor de Olot – 5º curso
El proyecto se sitúa en la Plaza Mayor de Olot, principal espacio comercial y de encuentro del centro histórico, tradicionalmente vinculado al mercado, al intercambio y a la vida cotidiana de la ciudad. Parte de la observación de un tejido urbano muy densificado, con una notable escasez de espacios públicos y de reunión y una fuerte presencia de fachadas históricas, lo que limita la capacidad del centro para acoger nuevas actividades sociales, culturales y productivas.
Ante esta situación, la propuesta no busca añadir nueva edificación ni alterar la imagen consolidada de la plaza, sino ensancharla simbólicamente hacia el interior del tejido existente. Para ello, se recuperan dos edificios actualmente abandonados, situados uno frente al otro en la calle de las Carnisseries, concebidos como una extensión interior de la Plaza Mayor. La intervención actúa desde el vacío, generando nuevos espacios públicos interiores que complementan a la plaza y amplían su capacidad de acogida desde dentro de la ciudad construida.
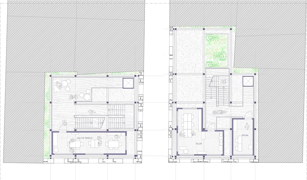
Los dos inmuebles se plantean como un sistema complementario basado en la dualidad pensar y hacer. En Carnisseries 1 se desarrolla la Casa del Pensar, un espacio social, cultural y de encuentro que acoge usos tranquilos, reflexivos y colectivos, vinculados a la pausa, la conversación y la vida comunitaria. En Carnisseries 2 se sitúa la Casa del Fer, un espacio de producción y creación artesanal que introduce un taller urbano abierto al público, devolviendo al centro histórico un uso activo, participativo y ligado a la producción local.
La propuesta refuerza el carácter comercial histórico de la Plaza Mayor, ampliándolo hacia formas de producción de proximidad. Los talleres se conciben como espacios de trabajo y aprendizaje cuyos productos pueden posteriormente exponerse y venderse en un mercado artesanal que se organiza tanto en el interior como en la propia plaza. De este modo, se establece una relación directa entre producción, comercialización y espacio público, recuperando el papel de la plaza como lugar de intercambio no solo de consumo, sino también de creación.
Desde el punto de vista arquitectónico, se mantienen las fachadas existentes para preservar la identidad urbana y comercial recientemente rehabilitada de la Plaza Mayor. Sin embargo, el interior de ambos edificios se vacía por completo y se introduce una nueva estructura metálica ligera y reticular, independiente de la envolvente. Esta estructura, formada por pilares y vigas metálicas de sección 25 × 25 cm, genera una malla tridimensional que actúa como estructura portante de los nuevos volúmenes programáticos y como soporte auxiliar de la fachada mediante anclajes puntuales.
Las comunicaciones se resuelven mediante pasarelas, escaleras y ascensores metálicos que conectan los distintos niveles, creando una experiencia espacial dinámica y abierta, caracterizada por transparencias, visuales cruzadas y la entrada de luz natural filtrada. Esta estructura ligera transforma los interiores en un paisaje tridimensional habitable, donde la arquitectura no solo sostiene, sino que construye relaciones entre personas, actividades y ciudad.
La planta baja y el zaguán se conciben como una prolongación directa de la Plaza Mayor, permitiendo que el pavimento y la actividad urbana penetren en el interior de los edificios. El mercado artesanal puede extenderse parcialmente hacia estos espacios intermedios, mientras que la cafetería se plantea como un comercio local que favorece la permanencia, la socialización y la continuidad de la vida urbana cotidiana.
De este modo, el proyecto propone una nueva relación entre lo público y lo privado: la ciudad entra en los edificios y los edificios salen hacia la ciudad. La calle de las Carnisseries deja de ser una simple vía de paso para convertirse en un nexo activo entre ambos inmuebles y la Plaza Mayor.
En conjunto, la intervención consolida este ámbito como un nodo social, cultural y productivo dentro del centro histórico de Olot, recuperando su papel histórico mediante una actuación de pequeña escala, ajustada al carácter de la ciudad y profundamente integrada en su tejido urbano.
https://archive.dpa-etsam.com/projects/casa-del-fer-y-casa-del-pensar
















Deja una respuesta